J60

J60

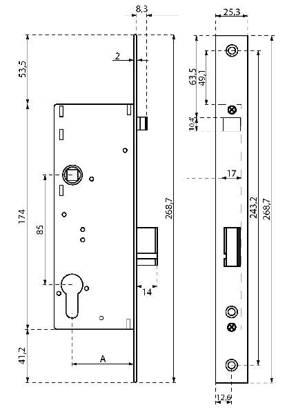
Producto: J60

Características Técnicas

Parámetro Valor
Referencia Principal J60
Tipo 1 Embutir
Voltaje Alimentación 12 Vac (estándar)
Funcionamiento Normal

Conjunto de cierre electro-mecánico de seguridad

Entrada cilindro A:60mm

Reversible (no guarda mano)

Funcionamiento normal:
– Sin impulso eléctrico : cerrado
– Con impulso eléctrico: abierto

Acabado: Gris

Voltaje: Estándar ( 12 Voltios corriente alterna 12Vac )

También disponible en 12VDC.

Descargas

Nombre Fichero Enlace
Información Producto Archivo no disponible

Comprar Producto

Si esta interesado en este producto pulse el botón de comprar y le reenviaremos a nuestra tienda

Comprar

Deja tu Valoración:

¡Haz clic para puntuar esta entrada!
(Votos: 0 Promedio: 0)

Deja un comentario